Welcome to our upgraded villa located at Highlands Reserve. Ideally situated just a short drive from all attractions in one of the most prestigious and well known communities in the Orlando area, Highlands Reserve combines a prime holiday location, with upscale housing and a magnificent 18 hole par 72 championship golf course. Perfect for those seeking well-appointed surroundings in a peaceful setting yet close to all the area's attractions The villa is situated right on the golf course with unrestricted views of the 7th fairway and green. At the front of the villa features a quite road which leads to the US27, only a few minutes away.






















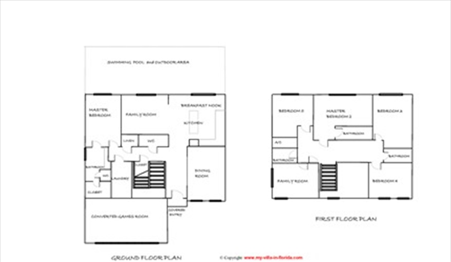
Refurbished and redesigned from a 6 bedroom to a 5 bedroom property, our villa provides ideal accommodation for two families and a fantastic place to relax while visiting the theme parks in the Orlando area. Perfectly situated on the golf course, likewise our villa also provides an excellent base for golfers choosing to play the fun and challenging Highlands Reserve Golf Course or any one of the numerous courses that lay nearby. Our villa is situated immediately on the golf course with unrestricted and tranquil views of the 7th fairway and green. Here you can watch the golfers go by while soaking in our private pool or relaxing on the one of the many sun loungers. Our luxury 5 bedroom 4.5 bathroom villa offers all the comforts of home and can easily accommodate two families and up to 10 in a party. Spacious and beautifully furnished on two floors with everything you would expect to make a perfect, relaxing and carefree holiday. The ground floor features a family room with a 51' flat screen TV, fully equipped kitchen with breakfast nook, large games room with pool table and dart board. A separate dining room with seating for six, laundry room with washer and dryer and an additional ground floor washroom. The first of two master bedrooms with ensuite bathroom and spacious Walk-in Wardrobe is also located on the ground floor. Patio doors in the kitchen allow access to the outdoor decking area with a large pool, outdoor furniture and stunning views over the 7th fairway. This really is the perfect place to relax after an exhilarating Florida day. The first floor consists of two separate family bathrooms, master suite with ensuite bathroom, the first of two twin bedrooms with single beds, a second twin bedroom with single beds and a further double bedroom. A spacious sitting room with l-shaped sofa, 42' flat screen TV, and games console provides a second sitting area for your enjoyment. All bedrooms have TV's with cable in the main living room. WiFi is supplied throughout the home with a secure connection via provided password. To make your stay more carefree, international telephone calling is available to keep in touch with relatives and friends back home in the real world. Additional features to make your stay more enjoyable and carefree; - Pool safety net - Thermal Pool Cover - Pool access door alarm - House Intruder alarm with your own access code - Dusk to dawn security lighting - Floor secured safe - Ceiling Fans in all bedrooms and lounges - Two Bicycles - 24 hour assistance from our management company - Key drop off box to allow instant collection and return of property keys. - Bed, linen and towels - Fitted wardrobes in all bedrooms - Access to Highlands Reserve tennis courts, children’s play area and community pool - Supermarkets and restaurants only a short drive away - Approximately 3000 sq ft Villa for you to enjoy.
All prices below are quoted in your selected currency. Dates are specified in day/month/year.
Any converted rates are not guaranteed to be accurate and may differ from any subsequent quotation you receive from the owner or manager.
Additional Information- Minimum rental period of 6 days - Additional cleaning fee for less than 7 days rental - Additional pool heating at £15.00 per day if required during winter months - 25% deposit secures your booking - GBP or USD welcome - Further REDUCTIONS MAY APPLY. EMAIL FOR DETAILS.
| Living Room Kitchen Area | The Living room is adjacent to the kitchen and features a 51” flat screen TV with DVD, full cable and a leather sofa with seating for up to 7. A selection of books are also available for your entertainment. The kitchen and breakfast nook are also part of this open area. Seating for 4 is availabe at the breakfast nook table with a further two bar stools at the breakfast bar. The large fully-equipped kitchen with side-by-side refrigerator with ice & water dispenser, large oven & hob, microwave, dishwasher, toaster, coffee maker, juice maker, waste disposer, crockery, cutlery and even an electric can opener. |
| Dining Room | The dining area has seating for up to 6 and is located next to the kitchen in a separate room. |
| No. 1 Master Bedroom Bedroom sleeps King | The large master bedroom has fantastic views over the pool and golf course. It has a king size bed, ceiling fan, walk-in wardrobe with floor safe, 20” TV, alarm clock radio and telephone. The en-suite bathroom has a large bath, a large walk-in shower cubicle, twin vanity units either side of the bath, and a separate WC. We have also provided a hair dryer. |
| No.2 Master Bedroom (First Floor) Bedroom sleeps Queen | The second master bedroom has a queen size bed, ceiling fan, 22” LCD TV, alarm clock radio, wardrobe, chest of drawers with large mirror and en-suite bathroom with bath and shower, hair dryer, single vanity unit and WC and linen cupboard. |
| No.1 Twin Bedroom (First Floor) Bedroom sleeps Twin | There are two twin bedrooms located upstairs. Each room includes a 19” LCD TV, ceiling fan and a large built-in wardrobe. |
| No.2 Twin Bedroom (First Floor) Bedroom sleeps Twin | There are two twin bedrooms located upstairs. Each room includes a 19” LCD TV, ceiling fan and a large built-in wardrobe. |
| Double Bedrom (First Floor) Bedroom sleeps Queen | Bedroom number 5 features a queen sized double bed, ceiling fan, 19” flat screen TV and a large built in wardrobe. |
| Family Room (First Floor) | The family room situated on the first floor is bright with comfortable seating for 6. A 42” LCD TV, DVD player and Wii games console are available for your entertainment. |
| Games Room | The games room comes with a pool table, air hockey, dart board and two bicycles for your use. |
| Laundry | The laundry room is fitted with washer, dryer, iron and ironing board. |
| Bathrooms | Altogether there are 4.5 bathrooms. Two family bathrooms upstairs with vanity unit, a bath with shower over, WC and hair dryer serving bedrooms 3, 4 and 5. A toilet room situated downstairs for family use and two ensuite bathrooms for each master suite bedroom. |
| Pool Area | The pool looks onto the seventh fairway and green of Highlands Reserve Golf Course with no rear neighbours. We have provided sun loungers and a patio table with 6 chairs for your comfort. For toddler safety, the pool has a removable safety fence to prevent young children from falling onto the pool when unattended. The pool can be heated for an additional charge (recommended from November to March). |
Hi Alex Just wanted to say a quick thank you for allowing us to stay in your home. We had a great time ! Thanks Martin
We had a great time, we had 8 of us staying. Everything worked as it should and we were able to swim and hang out in the garage to play pool and darts. Would have been nice to have a few more towels, but other than that it was great!
Lovely and spacious, fairly quick to get to Disney parks by using Waze for guidance to avoid traffic.
Yes, advertised rates include all taxes.
There is no limit to the amount of days required. Discounts apply for long term. Please message for details.
Our villa backs onto the 7th fairway of Highlands Reserve Golf Course. The club house is only a short walk from the property.
Owner's Name
Alexander Buchan
Contact Number
0141 4161132
Member since
Sep 2012